$289,900 | 3 beds | 2 full baths | N/A half baths | N/A sqft

$289,900 No Recent Price Change
4220 Chaffee Road
Spartanburg, SC 29301
  • 3Beds
  • 2Full Baths
  • N/AHalf Baths
  • N/ASqFt
  • 1972Year Built
  • 0.41Acres
  • MLS# 1570600
  • Residential
  • Single Family Residence
  • Active

  • Approx Time on Market9 days
  • Area033-Spartanburg
  • CountySpartanburg
  • Subdivision Oak Forest

Overview

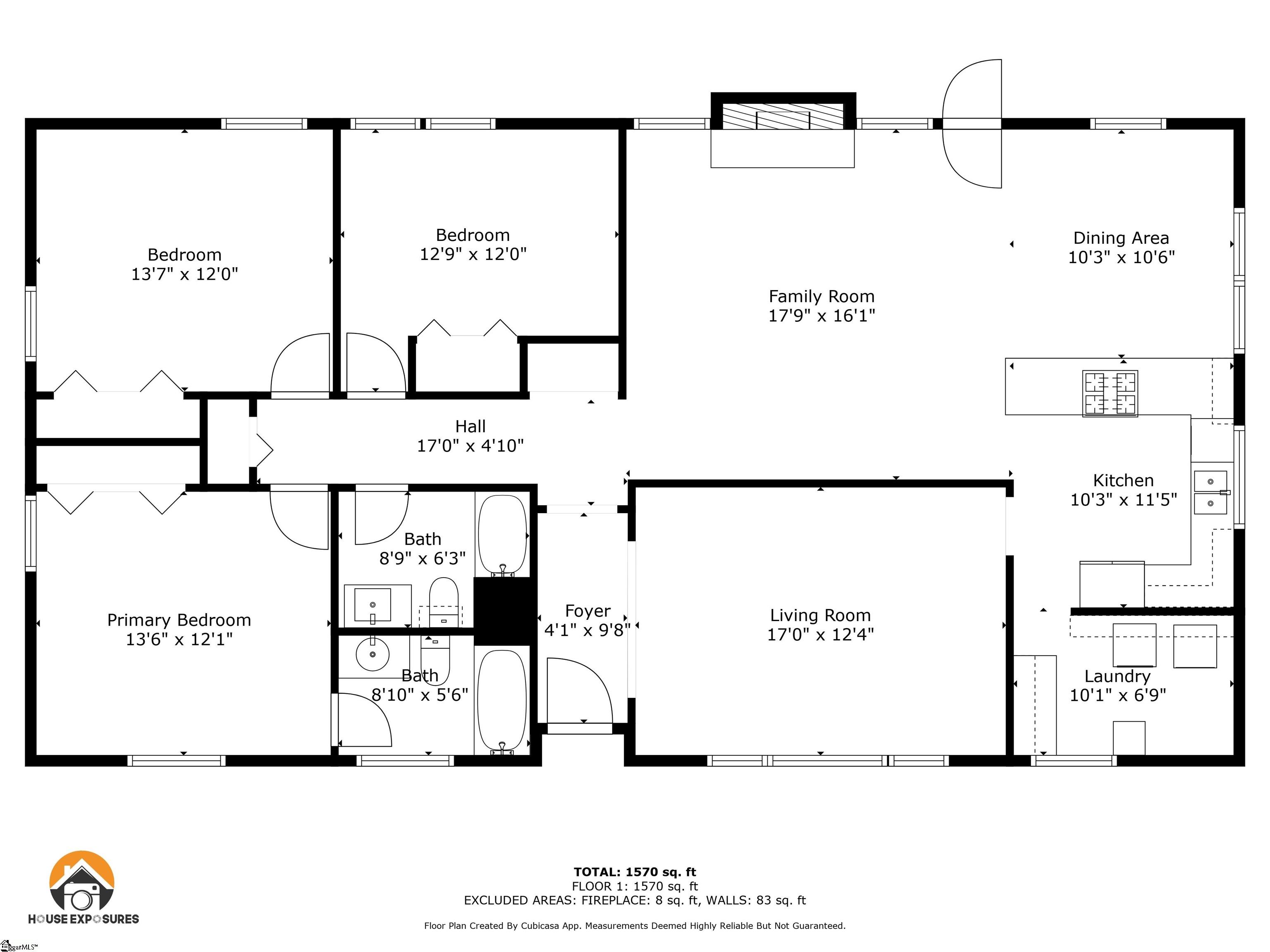
Nestled on a spacious .4-acre lot in the heart of Spartanburgs sought-after west side, this 1-story colonial-style home combines timeless elegance with modern convenience. Boasting a low-maintenance all-brick exterior, new energy-efficient windows (2024), and a newer architectural shingle roof (2017), this residence is as practical as it is beautiful. Step inside to discover a warm and inviting interior featuring 3 bedrooms, 2 recently-remodeled bathrooms, and two versatile living areas perfect for relaxation or entertaining. The eat-in kitchen shines with freshly refinished cabinets, sleek stainless steel appliances, and new stylish floors. Cozy up by the gas fireplace in the living room, or enjoy the comfort of new carpeting in the bedrooms. Outside, the fenced-in yard is a private oasis, complete with vibrant garden beds bursting with flowers, herbs, berry bushes, and various fruit treesideal for cooking or gardening enthusiasts, or those seeking a serene retreat. With its thoughtful upgrades and prime location, this move-in-ready home is a rare find. Schedule your showing today and experience west side living at its finest!



Agriculture / Farm

Horse:  No

Amenities / Special Info

Community Features:  None

Association Fees / Info

Hoa:  No

Hoa Includes:  None

Bathroom Info

Main Level Bathrooms:  2

Total Baths:  2

Main Level Bedrooms:  3

Fullbaths:  2

Bedroom Info

Beds:  3

Building Info

Levels:  One

Foundation Details:  Crawl Space

Construction Materials:  Brick Veneer

Year Built:  1972

New Construction:  No

Cooling:  Yes

Property Condition:  50+

Roof:  Architectural

Exterior Features

Window Features:  Window Treatments, Insulated Windows

Fencing:  Fenced

Patio and Porch Features:  Rear Porch

Spa:  No

Pool Private:  No

Garage / Parking

Garage:  Yes

Carport:  Yes

Open Parking:  Yes

Parking Features:  Attached Carport, Concrete, Carport, Driveway

Attached Garage:  No

Handicap

Accessibility Features:  Attic Stairs Disappearing

Interior Features

Flooring:  Carpet, Wood, Luxury Vinyl

Interior Features:  Open Floorplan, Laminate Counters

Fireplace:  Yes

Fireplace Features:  Gas Log

Laundry Features:  1st Floor, Electric Dryer Hookup, Washer Hookup, Laundry Room

Lot Info

Acres:  0.41

Lot Area:  17859.6

Lot Features:  1/2 Acre or Less, Corner Lot, Few Trees

Lot Size:  180 x 100 x 180 x 100

Lot Size Units:  Square Feet

Misc

Other Equipment:  Dehumidifier

Other

Property Info

Senior Community:  No

Basement:  None

County:  Spartanburg

Style:  Colonial, Ranch

Topography:  Level

Security Features:  Smoke Detector(s)

Sqft Info

Living Area Units:  Square Feet

Unit Info

Utilities / Hvac

Water Source:  Public

Appliances:  Dishwasher, Free-Standing Gas Range, Electric Water Heater

Cooling:  Central Air, Electric, Heat Pump

Sewer:  Public Sewer

Heating:  Electric, Forced Air, Heat Pump

Heating:  Yes

Waterfront / Water

Waterfront:  No

View:  No

Schools

Elem:  West View

Middle:  Rp Dawkins

High:  Dorman

Courtesy of Douglas Heasley of Community First Realty 

Mortgage Calculator

%
$
%
Dollars per $1000
$
Approximate Monthly Payment 0.0
On longboatgroup.com since Fri, Sep 26th 2025
No Property History recorded for this listing.

Source of information: Greenville MLS. Information is provided exclusively for consumers personal, non-commercial use and may not be used for any purpose other than to identify prospective properties consumers may be interested in purchasing. Last Updated On: 10-05-2025 10:33 PM EST.

Any images related to data from the MLS is the sole property of the MLS and not the responsibility of the owner of this website. This real estate website and IDX data is hosted by IDX data is Powered & Hosted by Dynamic IDX, LLC Real Estate Web Solutions