$285,000 | 3 beds | 2 full baths | N/A half baths | N/A sqft

$285,000 No Recent Price Change
368 Ccc Camp Road
Greer, SC 29651
  • 3Beds
  • 2Full Baths
  • N/AHalf Baths
  • N/ASqFt
  • N/AYear Built
  • 1.23Acres
  • MLS# 1571296
  • Residential
  • Single Family Residence
  • Active

  • Approx Time on Market4 days
  • Area014-N-Greer/campobello
  • CountyGreenville
  • Subdivision None

Overview

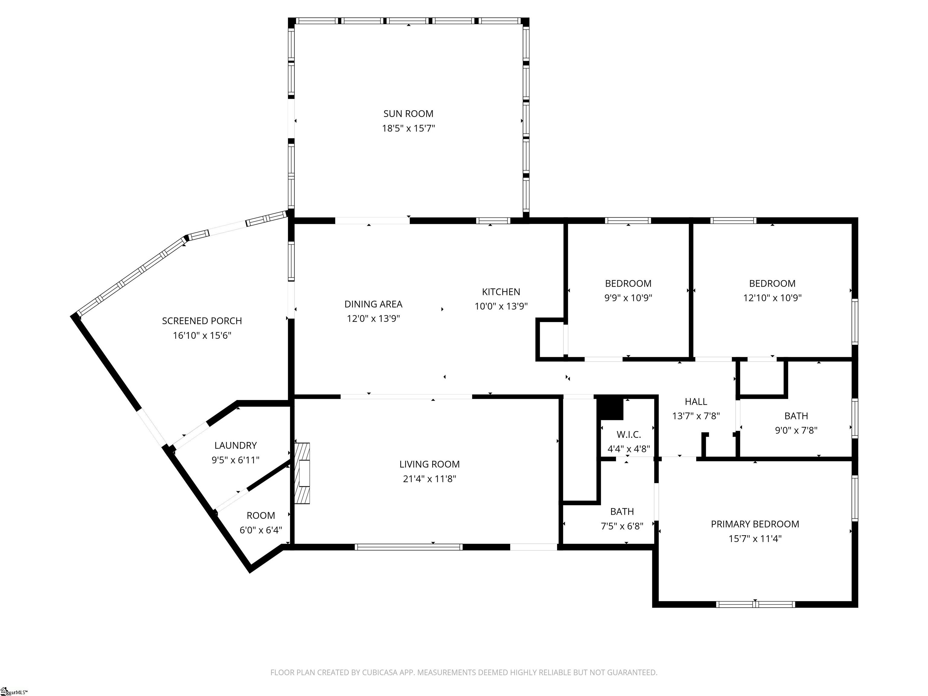
Charming One-Owner Ranch in Desirable Greer SC- NO HOA! Welcome to this well-loved one-owner ranch ideally located in the sought after Greer area. Tis home features 3 bedrooms and 2 baths with hardwood floors flowing through out the main living areas. Enjoy multiple spaces designed for relaxation and entertaining, including a large sunroom, screened in porch with brick flooring and fenced backyard perfect for family gatherings. A detached garage/workshop provides extra storage or space for hobbies while the basement has additional room for seasonal items. With NO HOA you will appreciate the freedom to make this property truly your own. Selling as-is, this home presents a fantastic opportunity to add your personal touch with a great location near shopping, dining and schools. Don't miss the Greer gem. Schedule your private showing today. Lock box on back door. Please enter thru the gate at the driveway an go onto the screen porch.



Agriculture / Farm

Horse:  No

Amenities / Special Info

Community Features:  None

Association Fees / Info

Hoa:  No

Hoa Includes:  None

Bathroom Info

Main Level Bathrooms:  2

Total Baths:  2

Main Level Bedrooms:  3

Fullbaths:  2

Bedroom Info

Beds:  3

Building Info

Levels:  One

Foundation Details:  Crawl Space, Basement

Construction Materials:  Brick Veneer, Vinyl Siding

New Construction:  No

Cooling:  Yes

Property Condition:  50+

Roof:  Architectural

Exterior Features

Fencing:  Fenced

Patio and Porch Features:  Front Porch, Screened

Spa:  No

Pool Private:  No

Garage / Parking

Garage:  Yes

Carport:  No

Open Parking:  Yes

Parking Features:  Combination, Paved, Workshop in Garage, Attached, Detached

Attached Garage:  Yes

Handicap

Interior Features

Flooring:  Carpet, Ceramic Tile, Wood

Interior Features:  High Ceilings

Fireplace:  Yes

Fireplace Features:  Gas Log

Laundry Features:  1st Floor, Garage/Storage

Lot Info

Acres:  1.23

Lot Area:  1.23

Lot Features:  1 - 2 Acres

Lot Size Units:  Acres

Misc

Other

Property Info

Senior Community:  No

Basement:  Sump Pump, Unfinished, Dehumidifier

County:  Greenville

Style:  Ranch

Topography:  Level

Occupant Type:  Vacant

Sqft Info

Living Area Units:  Square Feet

Unit Info

Utilities / Hvac

Water Source:  Public

Appliances:  Dishwasher, Electric Oven, Gas Water Heater

Cooling:  Central Air

Sewer:  Septic Tank

Heating:  Natural Gas

Heating:  Yes

Waterfront / Water

Waterfront:  No

View:  No

Schools

Elem:  Crestview

Middle:  Greer

High:  Greer

Courtesy of Jill Cantrell-Gunter of Casey Group Real Estate, LLC 

Mortgage Calculator

%
$
%
Dollars per $1000
$
Approximate Monthly Payment 0.0
On longboatgroup.com since Sat, Oct 4th 2025
No Property History recorded for this listing.

Source of information: Greenville MLS. Information is provided exclusively for consumers personal, non-commercial use and may not be used for any purpose other than to identify prospective properties consumers may be interested in purchasing. Last Updated On: 10-08-2025 10:33 PM EST.

Any images related to data from the MLS is the sole property of the MLS and not the responsibility of the owner of this website. This real estate website and IDX data is hosted by IDX data is Powered & Hosted by Dynamic IDX, LLC Real Estate Web Solutions