$0
203 Phillips Avenue
Easley, SC 29640
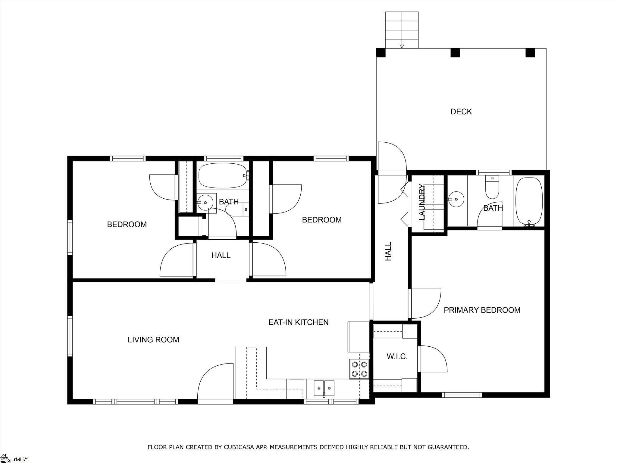
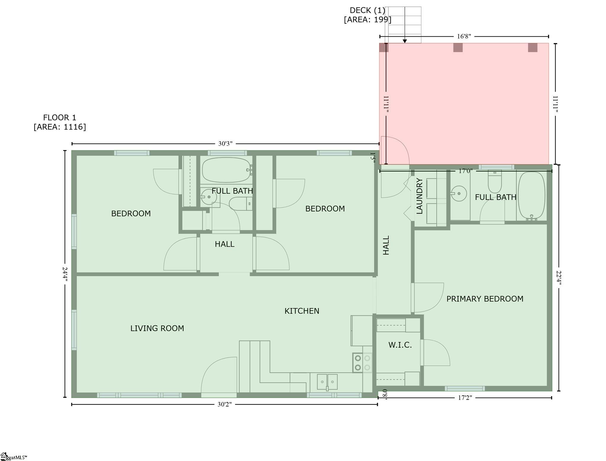
  • 3Beds
  • 2Full Baths
  • N/AHalf Baths
  • N/ASqFt
  • 1981Year Built
  • 0.29Acres
  • MLS# 1566617
  • Residential
  • Single Family Residence
  • Pending

  • Approx Time on Market1 month, 20 days
  • Area063-Easley Area
  • CountyPickens
  • Subdivision None

Overview

Welcome home!! This cute home might be starter home for a young couple, a home for someone downsizing, or an investment property. This well maintained home offers a great oasis in the back with many possibilities. 3 bedrooms and 2 full baths are ready for you to put your personal touch on. Come see this one quick, it won't last long.



Agriculture / Farm

Horse:  No

Amenities / Special Info

Community Features:  None

Association Fees / Info

Hoa:  No

Hoa Includes:  None

Bathroom Info

Main Level Bathrooms:  2

Total Baths:  2

Main Level Bedrooms:  3

Fullbaths:  2

Bedroom Info

Beds:  3

Building Info

Levels:  One

Foundation Details:  Crawl Space

Construction Materials:  Vinyl Siding

Year Built:  1981

New Construction:  No

Cooling:  Yes

Property Condition:  31-50

Roof:  Architectural

Exterior Features

Window Features:  Tilt Out Windows, Insulated Windows

Fencing:  Fenced

Door Features:  Storm Door(s)

Patio and Porch Features:  Deck, Front Porch

Spa:  No

Pool Private:  No

Garage / Parking

Garage:  No

Carport:  No

Open Parking:  Yes

Parking Features:  None, Gravel, Driveway

Attached Garage:  No

Handicap

Interior Features

Flooring:  Carpet, Wood, Vinyl

Interior Features:  Walk-In Closet(s), Laminate Counters

Fireplace:  No

Fireplace Features:  None

Laundry Features:  Electric Dryer Hookup, Washer Hookup, Laundry Room

Lot Info

Acres:  0.29

Lot Area:  12632.4

Lot Features:  1/2 Acre or Less, Sloped, Few Trees

Lot Size:  0.29 acres

Lot Size Units:  Square Feet

Misc

Other

Property Info

Senior Community:  No

Basement:  None

County:  Pickens

Style:  Ranch

Security Features:  Smoke Detector(s)

Sqft Info

Living Area Units:  Square Feet

Unit Info

Utilities / Hvac

Water Source:  Public

Appliances:  Dishwasher, Electric Cooktop, Electric Oven, Free-Standing Electric Range, Electric Water Heater

Utilities Available:  Cable Available

Cooling:  Heat Pump

Sewer:  Public Sewer

Heating:  Natural Gas

Heating:  Yes

Waterfront / Water

Waterfront:  No

View:  No

Schools

Elem:  East End

Middle:  Richard H. Gettys

High:  Easley

Courtesy of Scott Kerwin of Fathom Realty - Woodruff Rd. 

Mortgage Calculator

%
$
%
Dollars per $1000
$
Approximate Monthly Payment 0.0
Price & Status History (on longboatgroup.com since Fri, Aug 15th 2025)
  • Original Price: $230,000
  • Current Price: $230,000
  • Price Reduced: $0
Date ChangedFromTo
08/20/2025ActivePending

Source of information: Greenville MLS. Information is provided exclusively for consumers personal, non-commercial use and may not be used for any purpose other than to identify prospective properties consumers may be interested in purchasing. Last Updated On: 10-06-2025 2:33 PM EST.

Any images related to data from the MLS is the sole property of the MLS and not the responsibility of the owner of this website. This real estate website and IDX data is hosted by IDX data is Powered & Hosted by Dynamic IDX, LLC Real Estate Web Solutions