$269,900 | 3 beds | 2 full baths | 1 half baths | N/A sqft

$269,900 Increase +$5,000
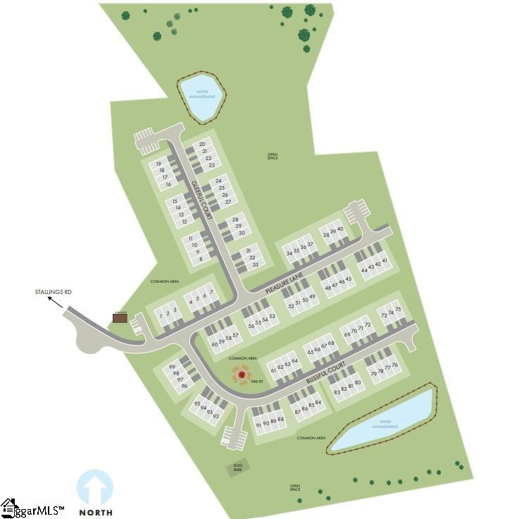
106 Pleasure Lane
Taylors, SC 29687
  • 3Beds
  • 2Full Baths
  • 1Half Baths
  • N/ASqFt
  • 2025Year Built
  • 0.05Acres
  • MLS# 1569092
  • Residential
  • Townhouse
  • Active


Overview

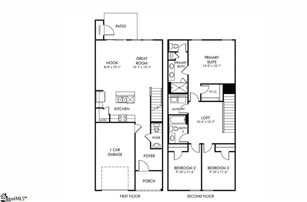
Brand new, energy-efficient home available by Oct 2025! Invite friends over to watch the big game in the spacious second-story loft. The primary suite features dual sinks and a large walk-in closet. Downstairs, the kitchen island overlooks the great room and dining area. Coming soon to Taylors, Northbrook Village Townes will feature 1- and 2-car garage townhomes, complete with a firepit and a dog park. Located just minutes from downtown Greenville, you'll have easy access to shopping, dining, and the Swamp Rabbit Trail. With low monthly payments and a straightforward buying process, Northbrook Village Townes offers an affordable pathway to your dream home. Join the interest list today to stay informed. Each of our homes is built with innovative, energy-efficient features designed to help you enjoy more savings, better health, real comfort and peace of mind.



Agriculture / Farm

Horse:  No

Amenities / Special Info

Community Features:  Other, Dog Park

Association Fees / Info

Hoa:  Yes

Hoa Includes:  None

Hoa Fees:  170

Bathroom Info

Total Baths:  3

Fullbaths:  2

Halfbaths:  1

Bedroom Info

Beds:  3

Building Info

Levels:  Two

Foundation Details:  Slab

Construction Materials:  Vinyl Siding

Year Built:  2025

New Construction:  Yes

Cooling:  Yes

Property Condition:  Under Construction

Roof:  Composition

Exterior Features

Patio and Porch Features:  Patio

Spa:  No

Pool Private:  No

Garage / Parking

Garage:  Yes

Carport:  No

Open Parking:  Yes

Parking Features:  Attached, Paved

Attached Garage:  Yes

Handicap

Interior Features

Flooring:  Carpet, Ceramic Tile, Laminate

Interior Features:  High Ceilings, Ceiling Smooth, Granite Counters, Countertops-Solid Surface, Walk-In Closet(s), Countertops - Quartz, Pantry

Fireplace:  No

Fireplace Features:  None

Laundry Features:  2nd Floor, Walk-in, Laundry Room

Lot Info

Acres:  0.05

Lot Area:  2178

Lot Features:  1/2 Acre or Less, Few Trees

Lot Size:  95 x 21

Lot Size Units:  Square Feet

Misc

Other

Property Info

Senior Community:  No

Basement:  None

County:  Greenville

Style:  Craftsman

Topography:  Level

Occupant Type:  Vacant

Sqft Info

Living Area Units:  Square Feet

Unit Info

Utilities / Hvac

Water Source:  Public

Appliances:  Dishwasher, Disposal, Dryer, Free-Standing Gas Range, Refrigerator, Washer, Microwave, Gas Water Heater, Tankless Water Heater

Cooling:  Central Air

Sewer:  Public Sewer

Heating:  Natural Gas

Heating:  Yes

Waterfront / Water

Waterfront:  No

View:  No

Schools

Elem:  Taylors

Middle:  Sevier

High:  Wade Hampton

Courtesy of Kelly Jo Hard of MTH SC Realty, LLC 

Mortgage Calculator

%
$
%
Dollars per $1000
$
Approximate Monthly Payment 0.0
Price & Status History (on longboatgroup.com since Thu, Sep 11th 2025)
  • Original Price: $269,900
  • Current Price: $269,900
  • Price Reduced: $0
Date ChangedFromTo
10/03/2025$264,900 $269,900 Increase by $5,000
09/17/2025$269,900 $264,900 Reduced by $5,000

Source of information: Greenville MLS. Information is provided exclusively for consumers personal, non-commercial use and may not be used for any purpose other than to identify prospective properties consumers may be interested in purchasing. Last Updated On: 10-07-2025 8:03 PM EST.

Any images related to data from the MLS is the sole property of the MLS and not the responsibility of the owner of this website. This real estate website and IDX data is hosted by IDX data is Powered & Hosted by Dynamic IDX, LLC Real Estate Web Solutions